東京 仲介手数料無料
クオリタス江東佐賀/水天宮前駅徒歩8分 保証人不要の築浅物件のご紹介です!
2026/03/13
こんにちは
ゼロ賃貸です!!
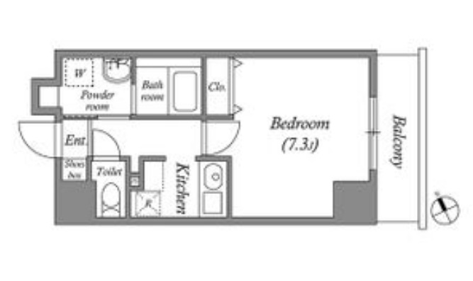
本日ご紹介させて頂きます物件は江東区の築浅物件です✨


半蔵門線[水天宮前駅]徒歩8分
家賃120,000円
共益費10,000円
2022年1月完成の高級賃貸マンション✨
敷金0ヶ月
礼金60,000円
仲介手数料0円
エントランスには、オートロック、防犯カメラ、TVモニター付インターホンなどの防犯設備を備えており、居住者のセキュリティ面に配慮しています☝️
都心部へのアクセスも良好です🚃
周辺には、スーパーやコンビニ、商業施設などもあり日常の生活にも大変便利です🙆♂️
人気物件の為、気になる方は早めにお問い合わせくださいませ🙇♂️
他にも多数物件を取り扱っておりますので、お気軽にお問い合わせください!!
ゼロ賃貸











